En välplanerad elkonstruktion sparar tid och pengar. Dimelcon AB skapar elkonstruktioner som är noggrant planerade och väldokumenterade för att förenkla både installation och framtida felsökning.


Med över 10 års erfarenhet inom elkraftsbranschen har vi på Dimelcon AB den kunskap som krävs för att skapa stabila och hållbara system.
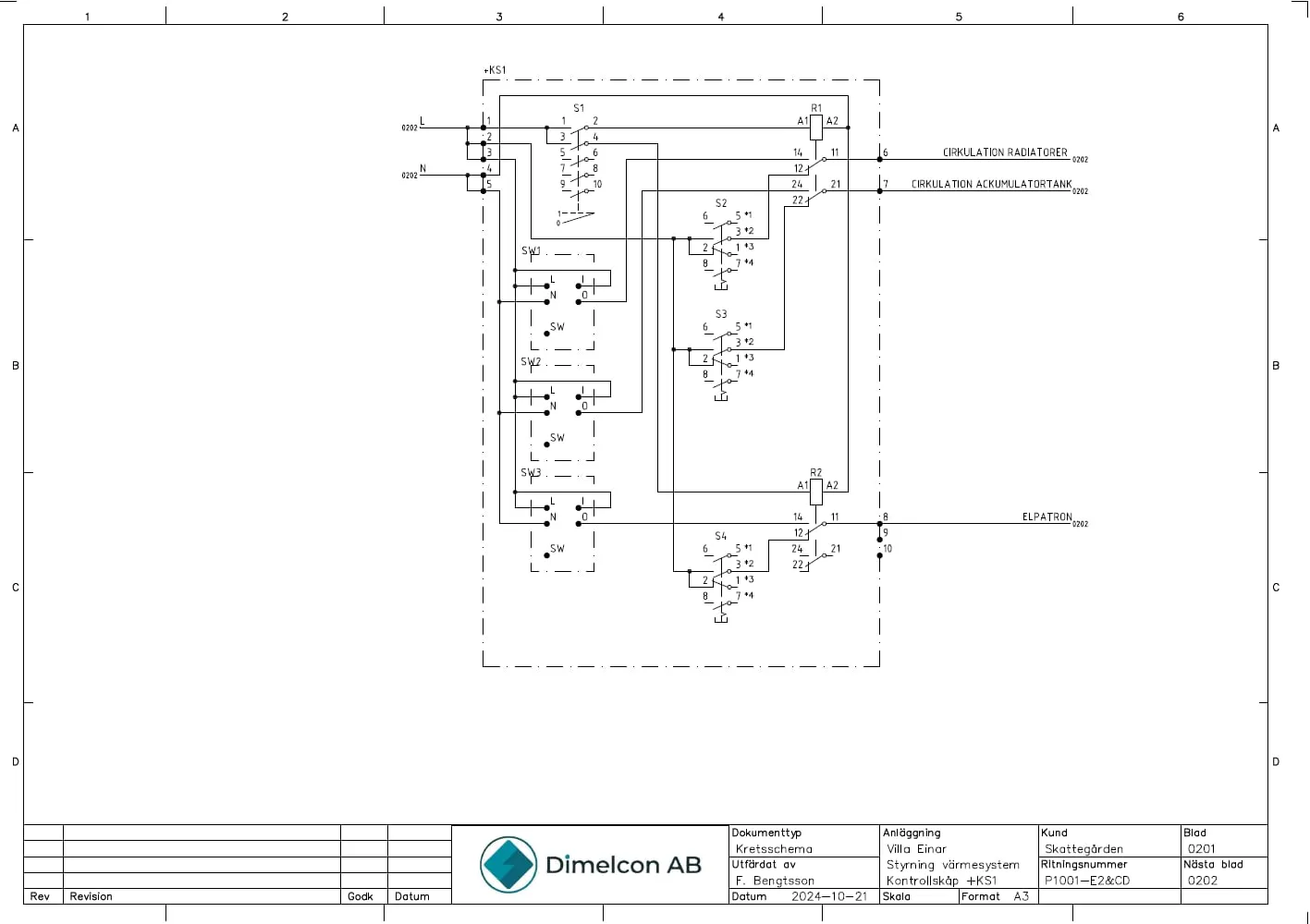
Vi besitter kunskap om såväl industriella elanläggningar som eldistributionsanläggningar, från 0,4kV till 130kV.
Vi är proaktiva i vårt arbete och ser till att identifiera och lösa potentiella problem redan i konstruktionsfasen. Genom vår kombination av elkonstruktion och expertis inom kabeldimensionering säkerställer vi att varje detalj är genomtänkt och att ni får en tydlig bild av hur er elinstallation kommer att fungera. Detta minimerar risken för framtida driftstopp och problem, vilket ger er trygghet och stabilitet i verksamheten.

När ni behöver en tillförlitlig elkonstruktion är det viktigt att tänka långsiktigt och förebyggande för att säkerställa en säker och effektiv drift. Hos Dimelcon AB är vårt mål att skapa skräddarsydda elkonstruktionslösningar som inte bara uppfyller alla säkerhetskrav, utan också optimerar er anläggning för framtida behov.
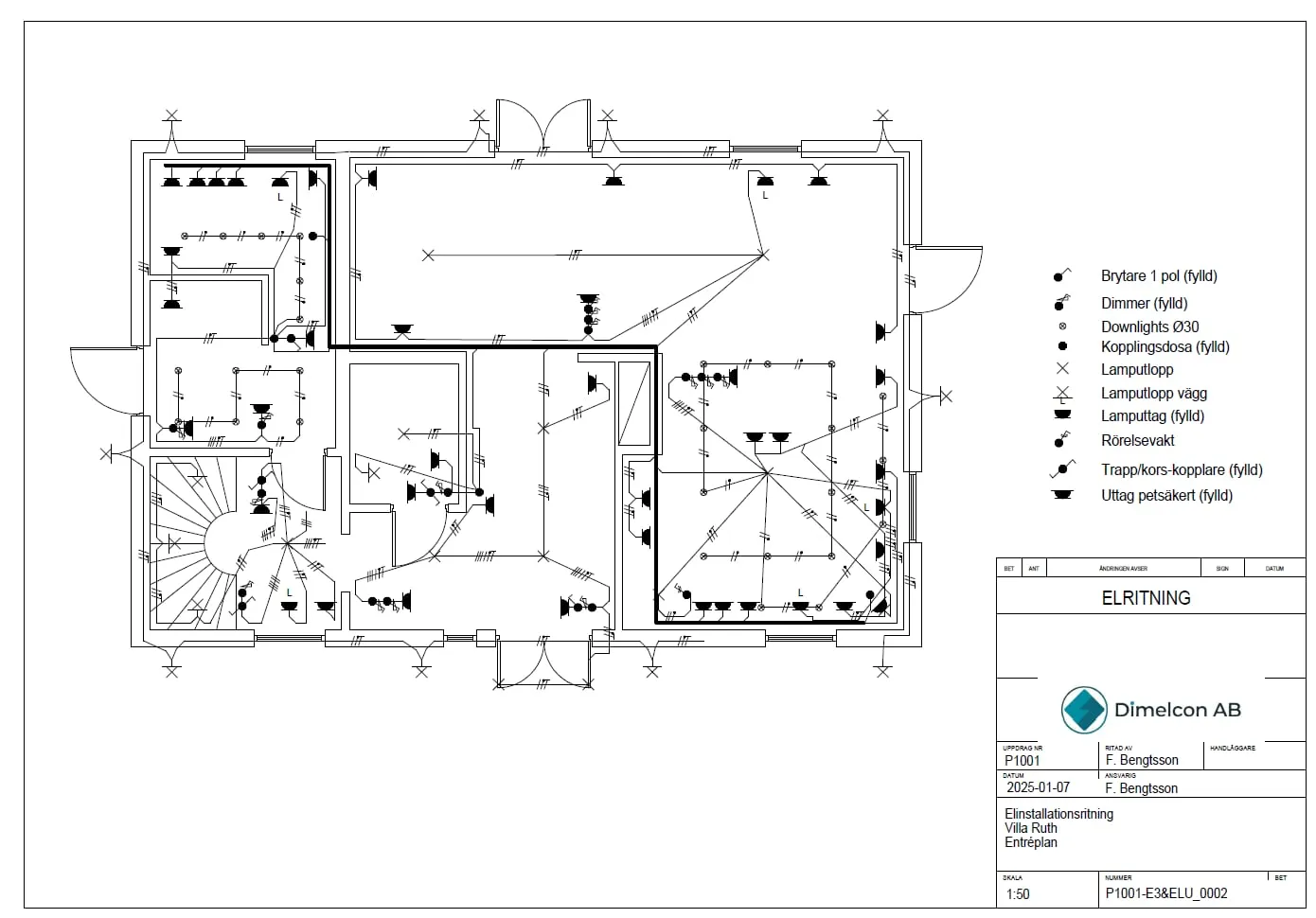
Vi erbjuder helhetslösningar inom el, från projektering till färdig installation, med fokus på kvalitet och kundanpassade lösningar.
Med fokus på svaga elnät på landsbygden levererar vi skräddarsydda lösningar för att optimera din elförsörjning och säkerställa att installationen fungerar utan avbrott.
Våra lösningar inom kabeldimensionering garanterar långsiktig stabilitet och tillförlitlighet i din anläggning, så att du kan driva din verksamhet tryggt och säkert.
Vi erbjuder anpassade elkonstruktionslösningar som förenklar installation och underhåll. Kontakta oss idag för att diskutera hur vi kan hjälpa er med ert nästa projekt.
Vi erbjuder skräddarsydda lösningar inom elkonstruktion och elinstallation, anpassade för just er verksamhet. Vi kontaktar er för mer information.